arrow_back_ios Back View more articles

Persimmon gets approval for 1,500 homes, a new school, and road improvements in Swindon

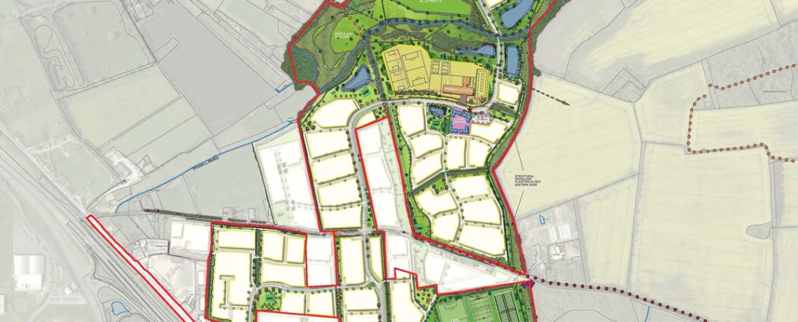
Housebuilder Persimmon has been granted planning permission for a new sustainable community of 1,552 homes in Kingsdown, Swindon.

At a meeting of Swindon Borough Council’s planning committee last night (Tuesday, December 12) proposals put forward by Persimmon Homes Wessex and Primegate Properties secured the seal of approval.

The zero-carbon ready development, situated on land east of A419 between the B4019 and Stratton Wood, will feature homes powered by air source heat pumps and solar panels, complemented by electric vehicle charging points.

As part of the extensive community contribution, crucial new infrastructure will be implemented early in the development, prior to the occupation of the 450th property.

This includes the establishment of a new three-form primary school and nursery, along with a bridge over the A419 connecting the B4019 (north) and Arkwight Road (south) through a new spine road within the scheme.

Off-site highway improvements, encompassing traffic calming in Blunsdon, and £2.7 million funding for bus services, will also be provided.

The proposal also entails the creation of a mixed-use local centre at the heart of the development, designed to accommodate retail, health, and/or community services.

As part of the commitment to the local community, 264 of the properties will be transferred to a local housing association partner, helping to address housing need in the area, with 5,400 people currently waiting on Swindon Council’s housing list.

“We’re delighted to have secured outline planning permission for our scheme at Kingsdown. Persimmon has a strong track record of delivering high-quality homes in Swindon, and we are eager to continue this legacy with our new project,” said Persimmon Wessex managing director, Julian Roper.

“The zero-carbon ready scheme not only provides an opportunity for local residents to enter the housing market but also brings numerous community benefits, including job opportunities and significant infrastructure developments such as a new primary school and an access bridge over the A419.

“Throughout the planning process for Kingsdown, we have worked closely with stakeholders at Swindon Borough Council, National Highways and Natural England.

“This collaboration ensures that the scheme not only delivers quality homes but also creates a sense of place with distinct character areas, while addressing key local priorities such as the early delivery of essential new infrastructure.

“On behalf of Persimmon Wessex, I would like to thank our project team, partners and key stakeholders for their assistance. We look forward to continuing this work and engagement as we deliver on our high-quality vision for Kingsdown.”

The scheme will also deliver accessible green space, eight children’s play areas, allotments, a new sports hub including pavilion and pitches, a biodiversity net gain through tree retention and planting, attenuation ponds, and over 1,000 bird and bat boxes.

Financial contributions in excess of £1.8 million will also be made to expand and maintain a new area of Stanton Country Park and enhance Stratton Wood, while measures to encourage walking and cycling such as a segregated off-carriageway cycle lane alongside the spine road are also included in the scheme.

Applications open for donations for charities helping young people into work

Read more

03.03.2026

Housing developer backs major community event in Chippenham

Read more

03.09.2025

Wiltshire homelessness charity Doorway boosted by £3,000 donation from Persimmon Homes

Read more

17.02.2025

Persimmon completes second zero carbon home pilot in Wiltshire

Read more

21.11.2023

Team GB and Persimmon team up to produce community challenge for schools

Read more

09.03.2023

Persimmon Homes makes larger donations available to community groups through charitable scheme

Read more

19.12.2022

New regional production director appointed by Persimmon Homes in Wales and South West

Read more

26.09.2022

Swindon Council leader visits Persimmon’s Badbury Park site to see new community assets

Read more

23.08.2022

Business Biscuit
Privacy Overview

This website uses cookies so that we can provide you with the best user experience possible. Cookie information is stored in your browser and performs functions such as recognising you when you return to our website and helping our team to understand which sections of the website you find most interesting and useful.